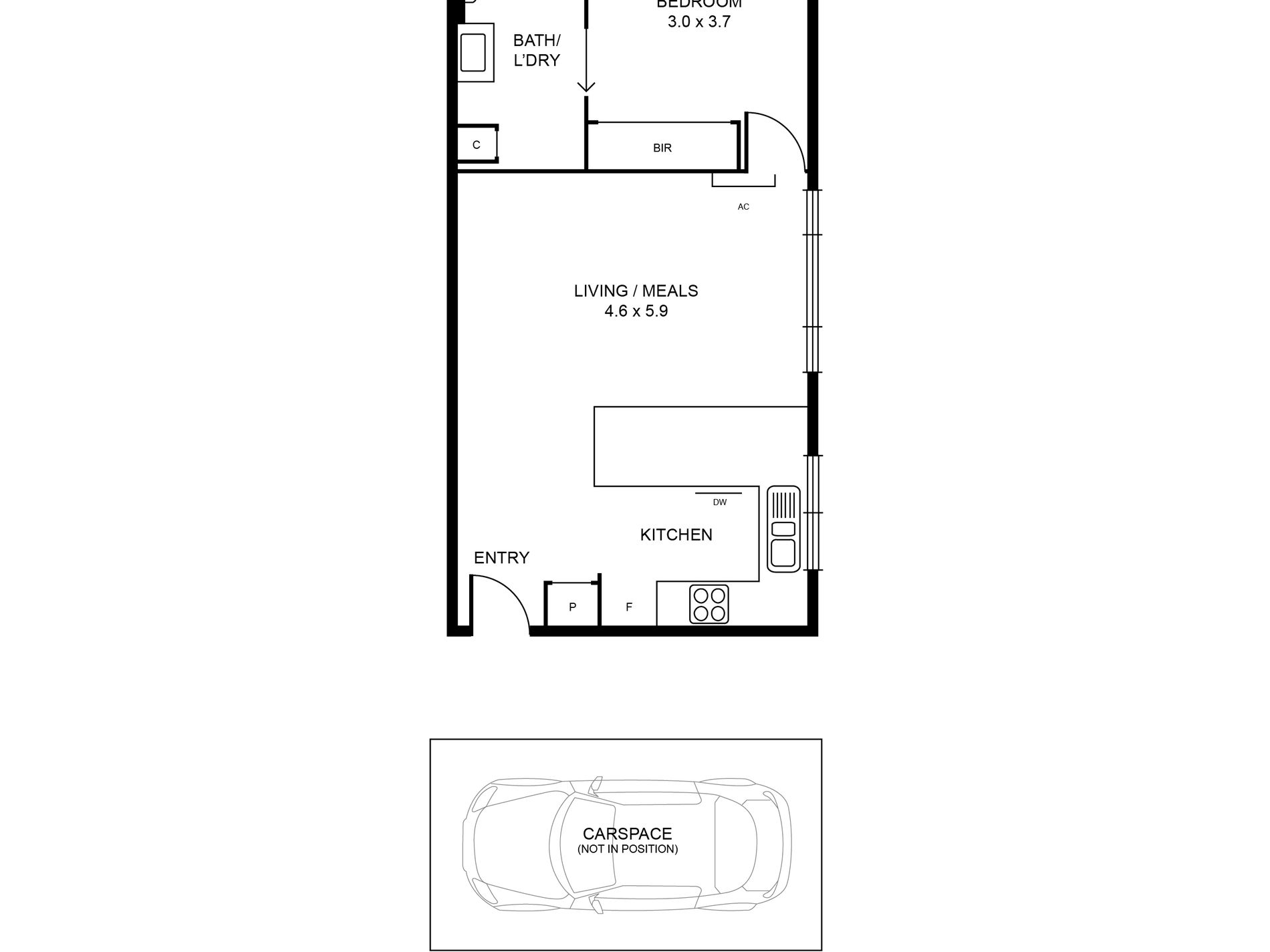
Securely tucked away in a well-maintained block of 8, you'll love the light, leafy outlooks & lifestyle of this conveniently located apartment boasting an enviable Essendon address. It's the sense of space and light that are immediately obvious as you step inside. Gloriously lit and lovingly looked after, this apartment sets a new benchmark for modern living with its seamless blend of style, comfort, and functionality. Offering an inviting haven bathed in natural light, perfect for those seeking a refined urban lifestyle. Located on the first floor of this boutique block, this chic retreat showcases some truly standout features. Bright and welcoming, the effortless open plan living and dining are complimented by a generously sized kitchen, fit for all levels of culinary delight. Leaving the entertainer's hub and heart of the home, effortlessly flowing to the sleeping quarters. The spacious bedroom is both plush and airy, featuring ample built-in robes and shelving, large bright windows, while the generously sized and elegant bathroom seamlessly integrates laundry facilities and a large shower. Requiring absolutely zero up-keep, the apartment is an easy lifestyle base in one of Essendon's more renowned locations or a set-and-forget investment in a location of enduring market appeal. Other keys standouts include: Security intercom and entrance Split system heating/cooling On title off-street parking at the rear 5min walking distance to Napier Street shops and public transport 15min drive to Melbourne Airport










