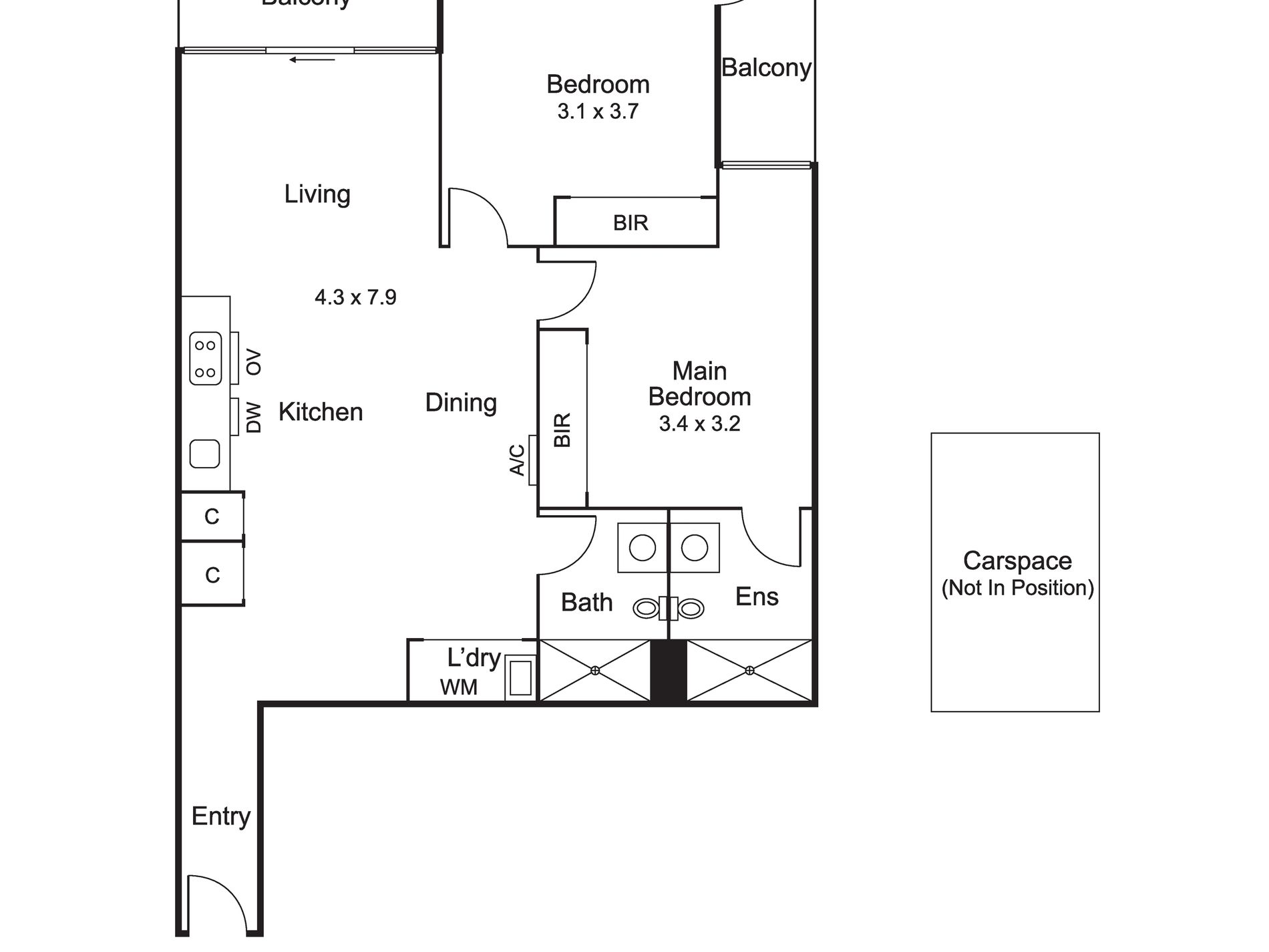
Located on the 11th floor of Claremont Manor in prime South Yarra location is this impressive two-bedroom, two-bathroom apartment with secured parking. The apartment features full height windows, timber flooring and an open-plan living and dining area leading out to the private balcony. The kitchen is sleek and stylish and equipped with modern appliances and stone benchtops. Both bedrooms are generous in size with the main featuring an ensuite and private balcony. Features: • 2 spacious bedrooms, master with ensuite • 2 modern bathrooms • Secured car space • Open plan living and dining • Private balconies Claremont Manor is a resort style facility offering a grand concierge-attended foyer, lap pool, 24-hour gym, private winter retreat and theatre rooms. The location is perfect with easy access to South Yarra Station, trams, iconic cafes and restaurants, boutique shopping, nightlife and the Yarra River's walking and cycling trails. This is a great opportunity to be a part of one of Melbourne's most sought after suburbs.









